12155 Metro Parkway, Apt 4 $13
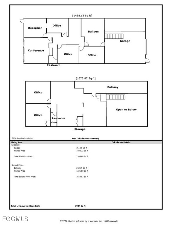
A 4002-square-foot flex space is available for lease or sale. The first floor features 1549 square feet of office space with vinyl plank flooring, an upgraded restroom, and a kitchenette, plus 900 square feet of warehouse space with 14-foot ground-level doors and three rear parking spots. The second floor offers 1549 square feet, including two offices and a versatile workroom/creative office/conference room/training facility, along with a kitchenette and a second restroom. For Lease for $13 NNN ($3.95) 1st year.
General Amenities
- Lot Acres
- 0.53
- Year Built
- 1985
12155 Metro Parkway, Apt 4
Fort Myers, Florida 33966
United States
Fort Myers, Florida 33966
United States
County: Lee
Sale Type: For Sale
Ref #: 2025014763
Last Updated: Wednesday, 05 November 2025 02:25
Type of Home: Commercial
Listed by RE/MAX Realty Group on Saturday, 11 October 2025 [For Sale]
- Lot Acres
- 0.53
- Year Built
- 1985
- Lot Acres
- 0.53
- Year Built
- 1985
12155 Metro Parkway, Apt 4
Fort Myers, Florida 33966
United States
Fort Myers, Florida 33966
United States
County: Lee
Sale Type: For Sale
Ref #: 2025014763
Last Updated: Wednesday, 05 November 2025 02:25
Type of Home: Commercial
Listed by RE/MAX Realty Group on Saturday, 11 October 2025 [For Sale]
